Two architecturally designed holiday homes on a Ticino hillside feature lake views, terraces, and integrated pools.

EcologyRealisedHousingPrivate

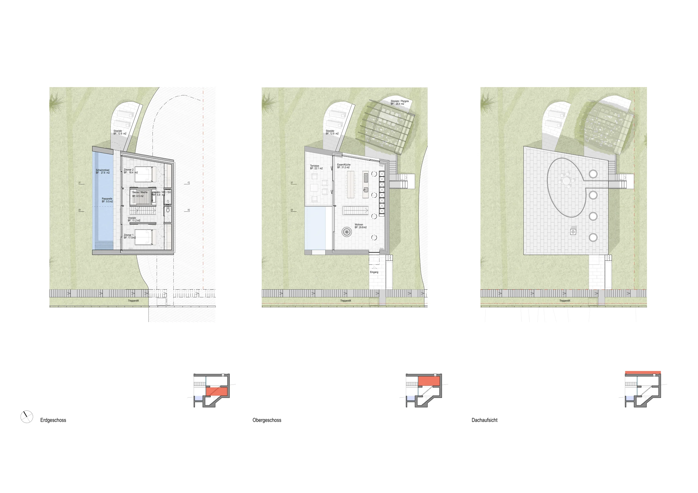
On a steep hillside in Ticino, two holiday homes offer optimal lake views. Access is via a long staircase from the road. Each house features a spacious living and dining area, two bedrooms, and an integrated swimming pool. The adjacent forest shapes the outdoor spaces, with terraces that provide both privacy and breathtaking views. The selection of materials and building technology is focused on ensuring a comfortable indoor climate.

Location

Sant'Abbondio (TI)

Client

Private

Type of mandate

Direct mandate 2010

Realization

2013 - 2014