Un volume unitaire, ancré dans la pente, qui orchestre les flux, la lumière et les fonctions autour d’un espace central généreux.

ClimatRéaliséIndustrie

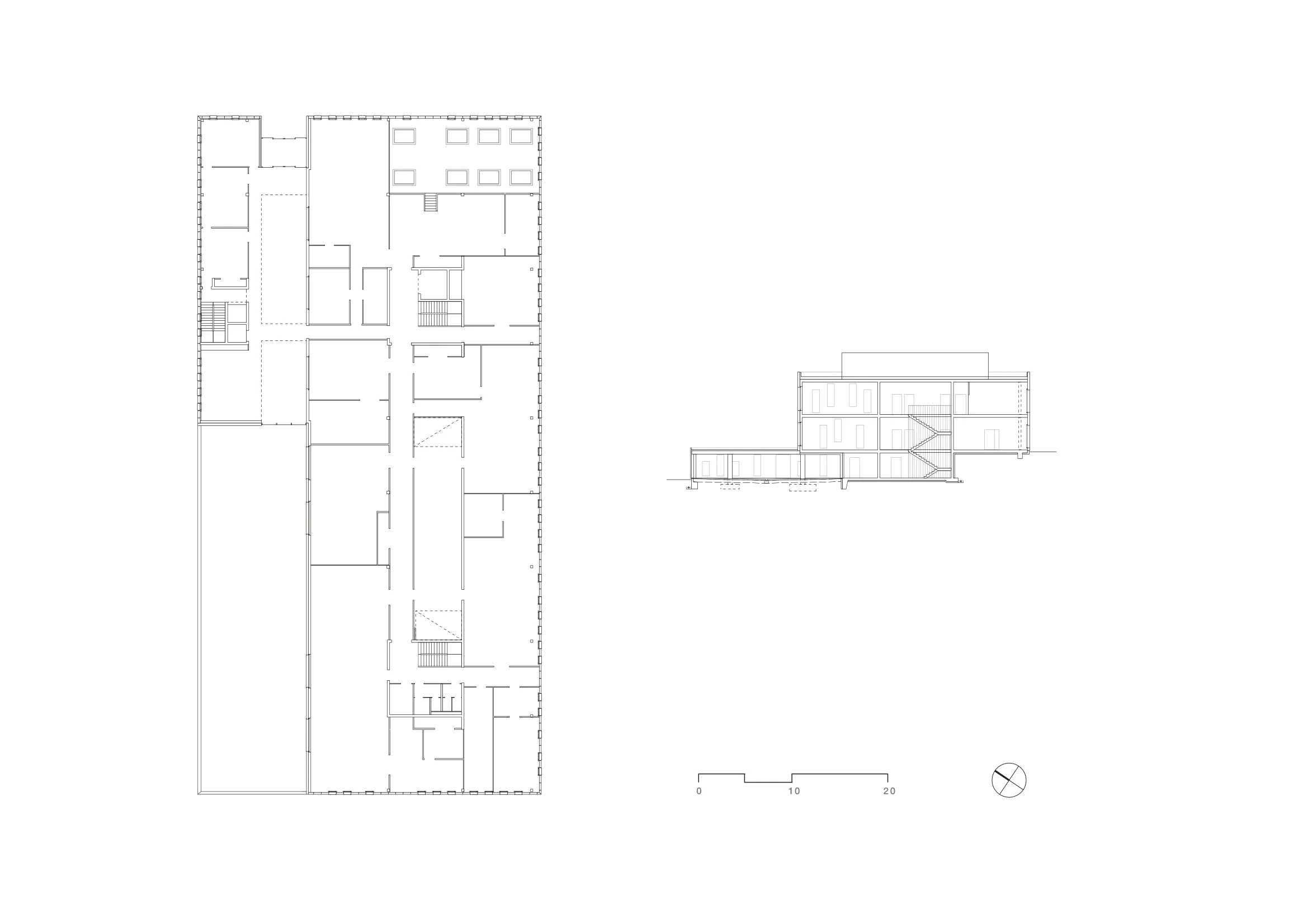
Conçu comme une pièce unitaire intégrée dans le terrain, l’édifice entre en dialogue avec ses voisins et réagit à la pente par un positionnement précis des différents niveaux d’entrée. Le regroupement de la production sur un site unique représente un choix stratégique important dans l’histoire de l’entreprise. L’organisation intérieure reflète cette stratégie, en réunissant autour d’un espace central les fonctions de production, de réception et d’administration. Structurant les parcours dans l’édifice, cet espace à double hauteur constitue un espace de référence au coeur de l’édifice, qui amène de la lumière naturelle et sert à la fois d’espace d’accueil, de show-room et de lieu de rencontre.

Berne

La Chaux-de-Fonds

Maître d'ouvrage

NewArt Solutions SA

Entreprise totale

Losinger Marazzi, Bussigny

Type de mandat

Mandat direct

Coûts

env. CHF 15 Mio.

Réalisation

2013-2014