Trois volumes en bois redéfinissent le paysage à Höheweg, Bolligen, offrant un ensemble harmonieux et durable.

ClimatRéaliséHabitat

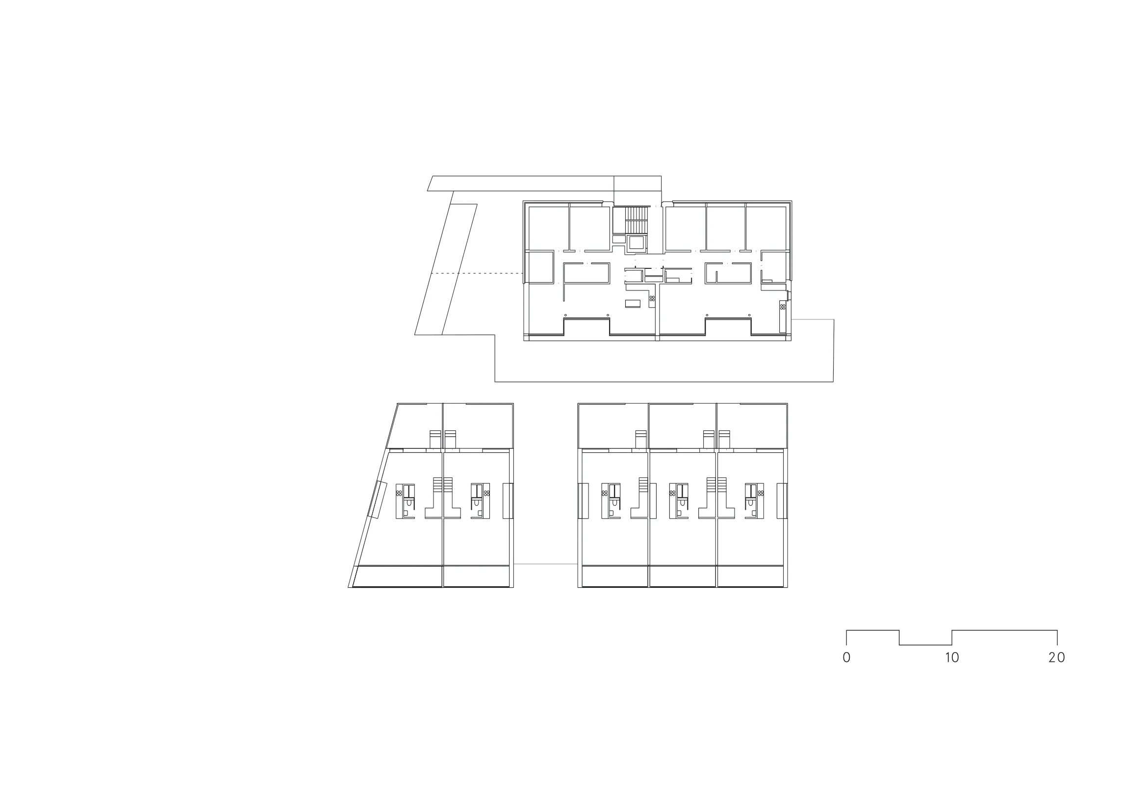
Trois volumes habillés de bois marquent la nouvelle silhouette du Höheweg à Bolligen. La parcelle, autrefois occupée par une seule maison individuelle, a été densifiée de manière significative avec l’ajout de cinq maisons mitoyennes et d’un immeuble collectif, formant un ensemble cohérent tout en offrant de vastes perspectives sur le paysage. Un mélange diversifié de types de logements ainsi qu’une bonne connexion aux transports publics contribuent également à la durabilité du projet.

Lieu

Bolligen (BE)

Maître d'ouvrage

Bauart Architectes et Urbanistes SA
Zimmermann Immobilien

Réalisation

2006 - 2008

Programme

6 appartements en PPE
5 maisons contiguës