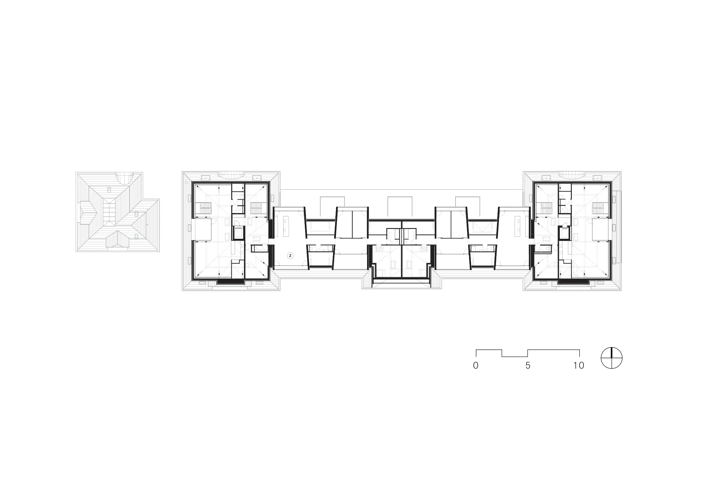
Ziel war es, die essentiellen Charakteristika des Südgebäudes und des Logenbereichs hervorzuheben, beides zentrale Elemente des 1914 in Betrieb genommenen Spitalkomplexes. Der wichtigste Raum des Projekts befindet sich in der südlichen Hälfte des Gebäudes: Er lebt von seinem grosszügigen Grundriss, den hohen Decken, der günstigen Sonnenausrichtung und seiner unglaublichen Sicht über den Neuenburger See mit den Alpen im Hintergrund. Das Dach ist mit vier durchdringenden Baukörpern versehen, die den Bau aussergewöhnlicher Wohnungen mit einer grandiosen Aussicht ermöglichten. Insgesamt beherbergt das alte Spital nun 24 Wohnungen und 4 Ateliers.